82522 Bluewater Highway Ashfield-Colborne-Wawanosh, Ontario N7A 3X9

1 Bathroom 3,027 ft2
Fully Air Conditioned Acreage

$4,000 Monthly

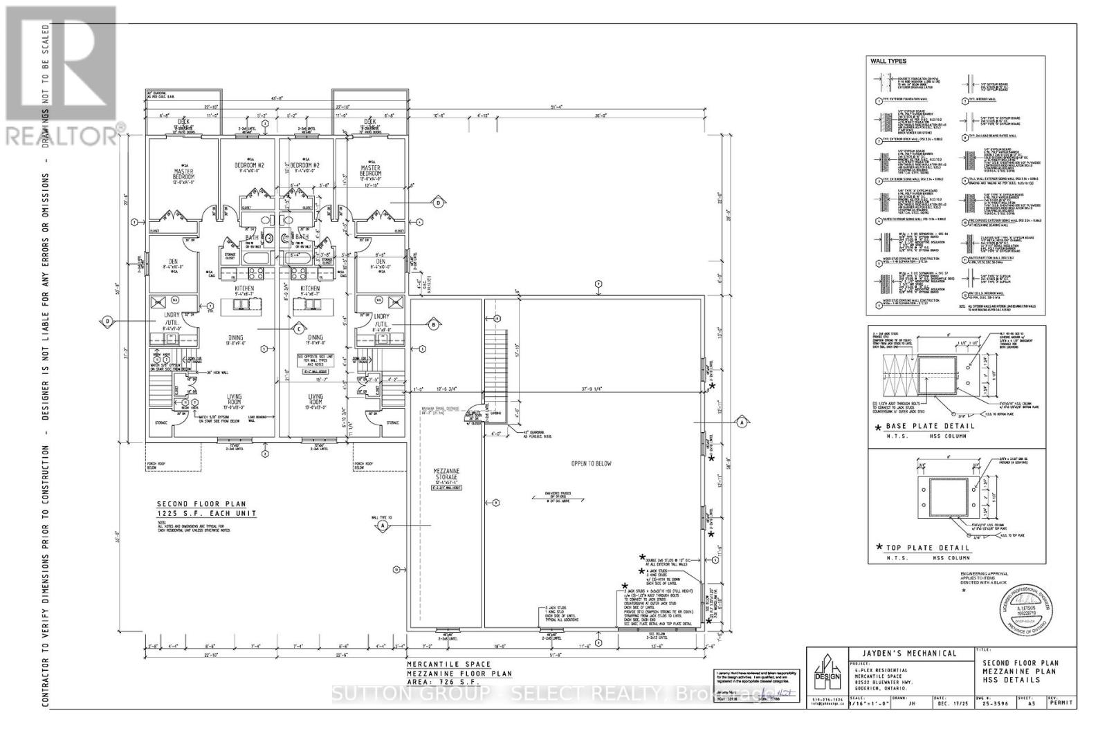
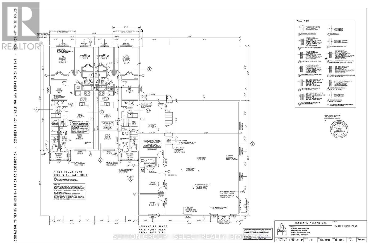
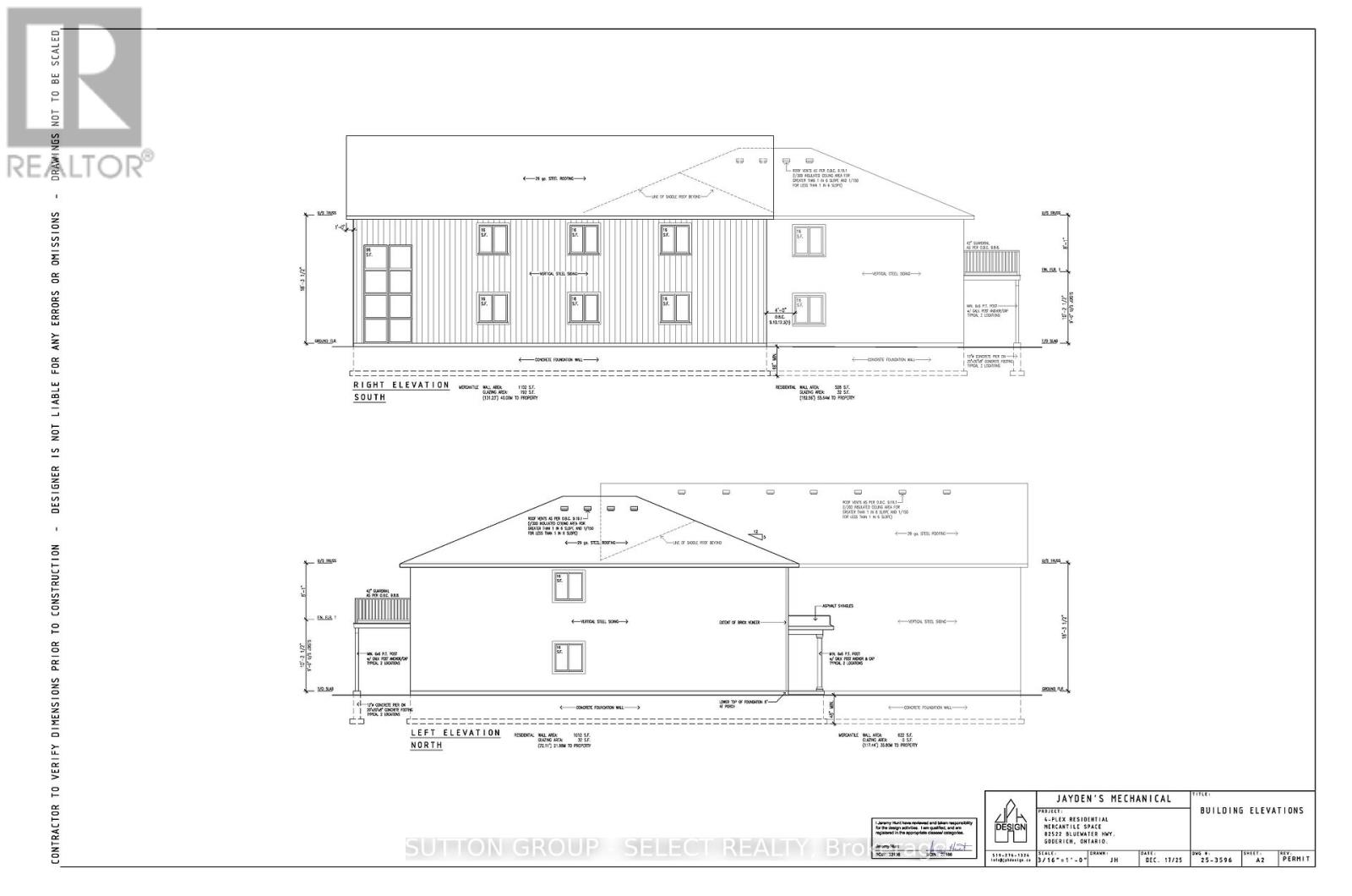
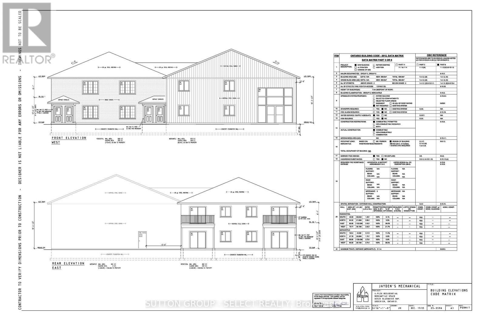
Prime Commercial Retail Lease Opportunity: High-Visibility Location on Highway 21! Looking to expand or launch your next retail business venture? This expansive commercial rental property-undergoing a major rebuild offers 3,024 sq. feet of customizable space in a high-traffic location along Highway 21. Previously home to the popular Point Farms General Store, this location boasts local history with the ability to be transformed to suit your unique vision. The interior will be finished by the tenant to meet the vision, giving you the opportunity to create a space perfectly tailored to your brand and operations. The drawings include an accessible washroom and two office spaces within the larger space, complemented by a 700 sq. foot mezzanine, perfect for office/break area or storage. Designed with both function and style in mind, the building features oversized windows that flood the space with natural light-ideal for attracting attention and showcasing your business. The polished concrete floors, wood-frame construction, and durable steel siding and roof offer a modern industrial aesthetic with long-lasting performance. Positioned for success, this property is easily accessible from Lake Huron's cottage country, popular destinations including Goderich, Kincardine, and Port Elgin, and just minutes from Point Farms Provincial Park-ensuring steady seasonal and year-round traffic. Additional highlights include ample shared parking with 20+ spaces, high exposure frontage, room for future development, and close proximity to the beautiful Lake Huron shoreline. Whether you're opening a boutique retail shop, cafe, general store, or service-based business, this is a rare opportunity to establish yourself in a growing and vibrant area. Bring your vision to life in a space designed for success. NOTE: Tenant pays rent plus utilities and internet. Long term lease preferred. (id:28006)

Business

Business Type Retail and Wholesale
Business Sub Type Retail misc.

Property Details

MLS® Number X12989536
Property Type Retail
Community Name Colborne
Amenities Near By Highway
Parking Space Total 26

Building

Bathroom Total 1
Age New Building
Cooling Type Fully Air Conditioned
Size Exterior 281.2 M2
Size Interior 3,027 Ft2

Land

Acreage Yes
Land Amenities Highway
Sewer Septic System
Size Depth 17.88 M
Size Frontage 25 M
Size Irregular 10
Size Total 10 Ac
Size Total Text 10 Ac
Zoning Description Ag4-6

https://www.realtor.ca/real-estate/29594561/82522-bluewater-highway-ashfield-colborne-wawanosh-colborne-colborne

Contact Us

Contact us for more information

Generating Captcha

Your Favourites

 

No Favourites Found