2 Bedroom
1 Bathroom
0 - 699 ft2
Central Air Conditioning
Forced Air
$174,900
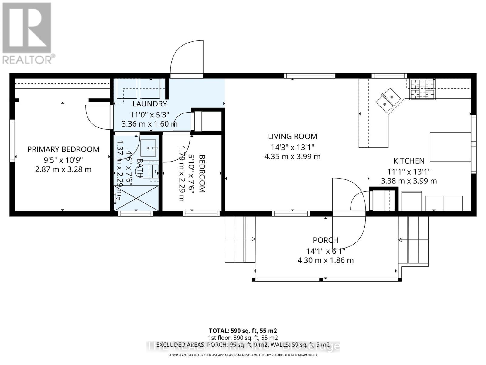
The Cove Retirement Community presents Unit 81. This well-maintained 2 bedroom, 1 bath mobile home is ideally located at the back of the park, offering peaceful views of mature trees from the spacious covered deck. The open concept living area features cathedral ceilings, hard surface flooring throughout, and an L-shaped kitchen with ample cabinetry and an eat-in peninsula. The home includes a convenient 3 piece bath with walk-in shower, a dedicated laundry area with built-in floating shelves, a spacious primary bedroom with access to the rear patio, and a second bedroom perfect for guests or a home office. Enjoy outdoor living with a covered deck, gazebo, and storage shed. This 1990 Commodore 14 x 48 mobile home has seen several updates including roof shingles in 2015, electric hot water tank 2016, furnace 2016, laminate flooring 2021 with bedrooms updated in 2023, shower 2021, bathroom vanity 2022, new eavestroughs 2021, and professionally levelled 2023. Land lease fees ($789.99/monthly) include property taxes, water, sewage, garbage and recycling, road maintenance, snow removal, and park maintenance. Community guidelines require one owner to be 50 plus, no dogs over 15 inches in height, no small children, and owner occupancy only with no rentals permitted. All offers must be conditional upon land lease approval. (id:28006)
Property Details
|
MLS® Number
|
X13000828 |
|
Property Type
|
Single Family |
|
Community Name
|
South D |
|
Features
|
Gazebo |
|
Parking Space Total
|
1 |
|
Structure
|
Deck, Shed |
Building
|
Bathroom Total
|
1 |
|
Bedrooms Above Ground
|
2 |
|
Bedrooms Total
|
2 |
|
Age
|
31 To 50 Years |
|
Amenities
|
Canopy |
|
Appliances
|
Water Heater, Dryer, Stove, Washer, Refrigerator |
|
Basement Type
|
None |
|
Cooling Type
|
Central Air Conditioning |
|
Exterior Finish
|
Vinyl Siding |
|
Foundation Type
|
Unknown |
|
Heating Fuel
|
Natural Gas |
|
Heating Type
|
Forced Air |
|
Size Interior
|
0 - 699 Ft2 |
|
Type
|
Mobile Home |
|
Utility Water
|
Municipal Water |
Parking
Land
|
Acreage
|
No |
|
Sewer
|
Sanitary Sewer |
Rooms
| Level |
Type |
Length |
Width |
Dimensions |
|
Main Level |
Primary Bedroom |
3.28 m |
2.87 m |
3.28 m x 2.87 m |
|
Main Level |
Bathroom |
1.37 m |
2.29 m |
1.37 m x 2.29 m |
|
Main Level |
Laundry Room |
3.36 m |
1.6 m |
3.36 m x 1.6 m |
|
Main Level |
Bedroom |
1.79 m |
2.29 m |
1.79 m x 2.29 m |
|
Main Level |
Living Room |
4.35 m |
3.99 m |
4.35 m x 3.99 m |
|
Main Level |
Kitchen |
3.38 m |
3.99 m |
3.38 m x 3.99 m |
https://www.realtor.ca/real-estate/29607102/81-198-springbank-drive-london-south-south-d-south-d