4371 Green Bend Road London South, Ontario N6P 0K9

3 Bedroom 3 Bathroom 1,500 - 2,000 ft2
Central Air Conditioning Forced Air

$829,900

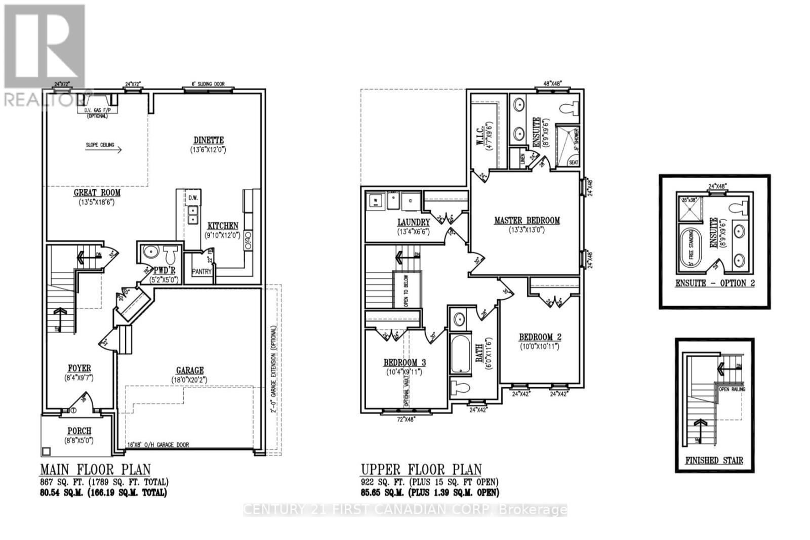
Welcome to your future home in the highly sought after Liberty Crossing community in Lambeth. This to-be-built two storey home by Castell Homes, The Cole model, offers 3 bedrooms and 2.5 bathrooms on a premium lot backing onto green space. Built with quality craftsmanship and a functional layout, this home is designed for comfortable, modern living. The main floor features a bright, open-concept kitchen, dining area, and great room, ideal for both everyday life and entertaining. The kitchen includes a convenient pantry for added storage. A 2-piece powder room and inside access to the double-car garage complete the main level. Upstairs, the primary bedroom includes a walk-in closet and private 4-piece ensuite, with the option to upgrade to a 5-piece ensuite featuring a soaker tub. Two additional well-sized bedrooms, a full 4-piece bathroom, and a second-floor laundry room add to the home's practical layout. Located in a family friendly neighbourhood, Liberty Crossing offers a quiet suburban setting with easy access to everyday amenities. Close to shopping, schools, parks, and recreational facilities in Lambeth, with convenient connections to Highways 402 and 401 for commuting across London and Southwestern Ontario. Price reflects the proposed 2026 HST rebates. Final rebate amount is subject to the passing of Provincial and Federal legislation and Buyer's eligibility as per government guidelines, including primary residence or qualifying rental. (id:28006)

Property Details

MLS® Number X13001120
Property Type Single Family
Community Name South V
Equipment Type Water Heater
Features Sump Pump
Parking Space Total 4
Rental Equipment Type Water Heater

Building

Bathroom Total 3
Bedrooms Above Ground 3
Bedrooms Total 3
Age New Building
Basement Development Unfinished
Basement Type Full (unfinished)
Construction Style Attachment Detached
Cooling Type Central Air Conditioning
Exterior Finish Stone, Hardboard
Fire Protection Smoke Detectors
Foundation Type Poured Concrete
Half Bath Total 1
Heating Fuel Natural Gas
Heating Type Forced Air
Stories Total 2
Size Interior 1,500 - 2,000 Ft2
Type House
Utility Water Municipal Water

Parking

Attached Garage
Garage

Land

Acreage No
Sewer Sanitary Sewer
Size Depth 107 Ft ,7 In
Size Frontage 42 Ft ,1 In
Size Irregular 42.1 X 107.6 Ft
Size Total Text 42.1 X 107.6 Ft

Rooms

Level Type Dimensions
Second Level Primary Bedroom 4.04 m x 3.96 m
Second Level Bedroom 3.05 m x 3.33 m
Second Level Bedroom 3.15 m x 3.02 m
Second Level Laundry Room 4.06 m x 1.98 m
Main Level Kitchen 3 m x 3.66 m
Main Level Dining Room 4.11 m x 3.66 m
Main Level Great Room 4.09 m x 5.64 m

https://www.realtor.ca/real-estate/29607374/4371-green-bend-road-london-south-south-v-south-v

Contact Us

Contact us for more information

Generating Captcha

Your Favourites

 

No Favourites Found